派艺诺,绿城玫瑰园案例赏析
◆ Project Brief ◆
项目地址│乐清绿城玫瑰园
项目面积│168平方
项目户型│3室2厅
项目风格│现代简约风格
整体定制│派艺诺整木定制

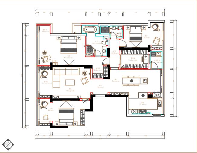
▲平面图
整体空间以现代简约风格为设计主轴,精选上乘材质、精湛工艺,挖掘出细腻深刻的美感。勾勒简练的层次感,材质、功能、形态的变幻演绎,令整个居室环境焕发出优雅魅力。


开放式餐厨区,靠墙的装饰柜采用不对称手法,打破整面墙的拥堵感,让整个柜型简洁大方。在良好的采光和简约的配色映衬下,餐厨空间更添一份高级感,让屋主品尝生活的惬意滋味。


定制餐边柜设置了洗手池,方便日常冲洗及在此处进行简单的备餐。餐厅除了满足生活功能,还兼顾着家人之间情感互动,这不仅是就餐空间,也是家人互动的情感纽带。

灰白色与软装相互呼应,辅以高品质的木作家具、精细的做工,于质地、触感、细节之中,呈现出动人的质感,奢华感不言而喻,家的艺术摩登范也呼之欲出!


客厅电视背景立面在井然有序的块面组合衬托下,辅以中性优雅的ICC进口瓷砖,延展出纯粹的层次感。悬挂投影式电视机,在家也可以感受到电影院的视觉效果,高端科技化设备带来的高贵感。


主卧摈弃复杂的装饰,简约的硬装线条,搭配精致的软装,呈现睡眠空间该有的温柔姿态。轻奢腔调的高级灰,造型感十足的墙面灯具…… 恰到好处的搭配,凸显出时髦的气质,也呈现出屋主的时尚品味。

衣帽间采用高品质定制家具、简约的线条,配上精致的拉手,气质尤为出众。收纳分区,物品的归类使主人有序存放,不显凌乱。开门设计使空间统一,整洁大气。

次卧衣柜的设计在现有的尺寸中满足挂放叠放等收纳功能,也进一步缓解整体居室的收纳压力。而定制家具的品质,常常隐藏于细节之间。材质、色彩、质地、触感…相互作用,谱写出空间的舒适感。


儿童房以明亮舒适为设计标准。浅灰为主色系呈现空间面貌,飘窗引入自然光源,与室内光源糅合融入,增强空间通透性及质感。

过道空间的色彩和肌理,既精致,又带着几分艺术色彩。恰到好处的木作移门,勾勒出立体轮廓感的同时,也为空间叠加上一层优雅的气质,让生活更富有艺术感。


卫浴间简约却富有线条感的墙面设计,配合简洁的卫浴陈设,铺垫出轻奢感空间气质。高品质柜体配合雅致的石材台面,满足耐用易打理等实用需求的同时,洗漱也变得更有仪式感。
